Contact Agent
Contact Form - EN
JAPAN House FOR SALE
Choshi, Chiba
【Chiba】Brand-New 4LDK Corner-Lot Home Surrounded by Nature in Chōshi, Chiba
4LDK
¥ 29,800,000

We handle 350K+ properties every month, including exclusive off-market listings just for you.

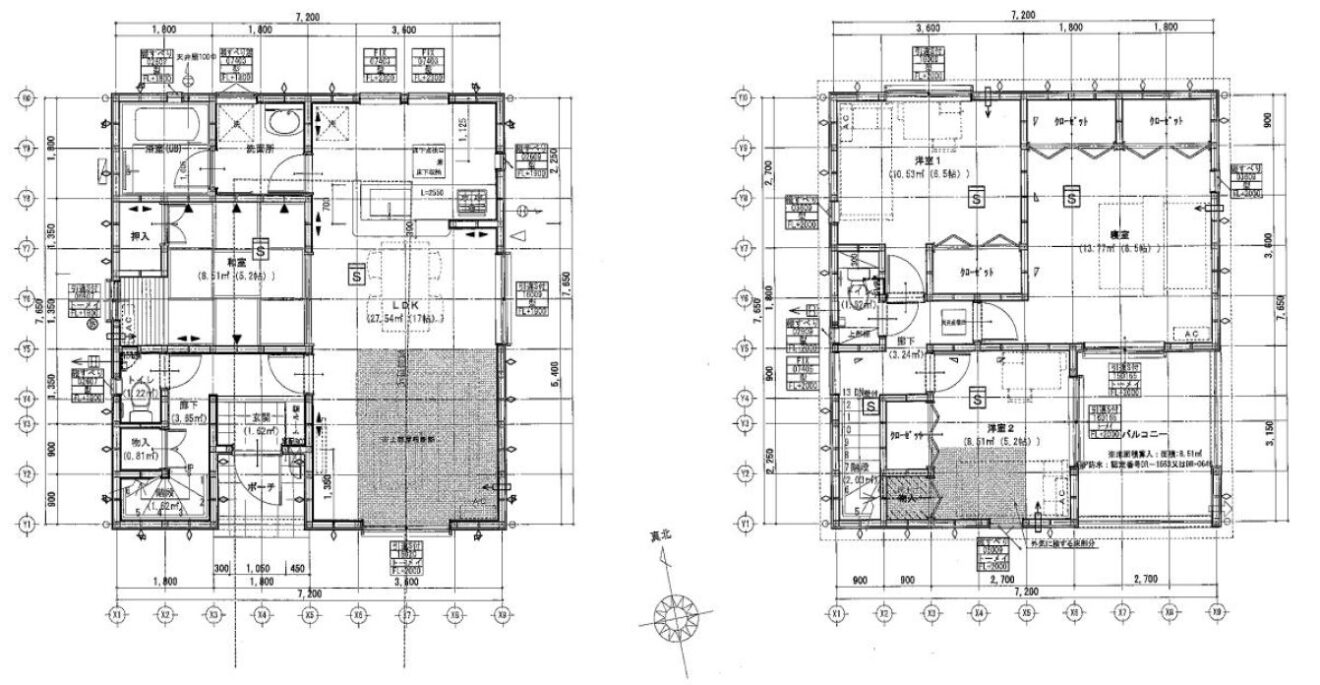
FLOORPLAN

FLOORPLAN

FLOORPLAN

  • 4 Bedrooms
  • 1.5 Baths
  • 517.11 m²

FEATURES

  • Balcony

ABOUT

Set in a peaceful residential neighborhood just an 11-minute walk from Chōshi Station, this newly built two-story home offers a comfortable living environment surrounded by rivers, parks, and abundant natural scenery. With wide public road access on multiple sides, the property enjoys excellent openness, sunlight, and ventilation.

Completed in December 2023, the home features a modern, clean interior with a practical layout designed for everyday living. Large windows bring in natural light throughout the day, while generous storage space helps keep the home neat and organized. The bright living areas and calm surroundings make this an easy place to settle into.

The spacious freehold land parcel provides flexibility for future use and enhances the sense of privacy rarely found so close to the station. Located in a quiet yet convenient area, the property is well suited for families or anyone seeking a relaxed lifestyle near nature, without sacrificing accessibility.

Highlights

  • Brand-new construction (2023)

  • 11-minute walk to JR Chōshi Station

  • Wide corner-lot with excellent sunlight and ventilation

  • Quiet residential area surrounded by rivers and parks

  • Practical, modern interior with ample storage

  • Freehold land with multiple road access

  • Vacant and ready for immediate move-in

  • Suitable for family living or long-term residence

This property offers a rare combination of new construction, walkable station access, and a tranquil natural setting, making it an attractive option for those looking to enjoy a slower pace of life in coastal Chiba.

PROPERTY
DETAILS

Property Type: House
Price: ¥ 29,800,000
Location: 6-10 Chūōchō, Chōshi City, Chiba Prefecture
Access: 11 min walk to Choshi Station (JR Sobu Main Line)
Urban Planning Area: Urbanized Area
Land Category: Residential
Zoning: Neighborhood commercial zone
Land Rights: Ownership
Building Area: 99.22m²
Land Size: 517.11m²
Building to Land Ratio: 80%
Floor Area Ratio: 200%
Structure: Wooden
Completion Date: June 2023
Layout: 4LDK
Parking: Available
Status: Vacant
Handover Date: To be decided

Contact us

Contact Form - EN
STAY CONNECTED

JOIN THE JOURNEY