Contact Agent
Contact Form - EN
JAPAN Investment Property (Whole Bldg) FOR SALE
Yokohama, Kanagawa
*PRICE DOWN*【Yield 6.5%】4LDK RC Townhouse with Stable 6.5% Yield – Yokohama, Shin-Honmoku West Fort
¥ 64,600,000

We handle 350K+ properties every month, including exclusive off-market listings just for you.

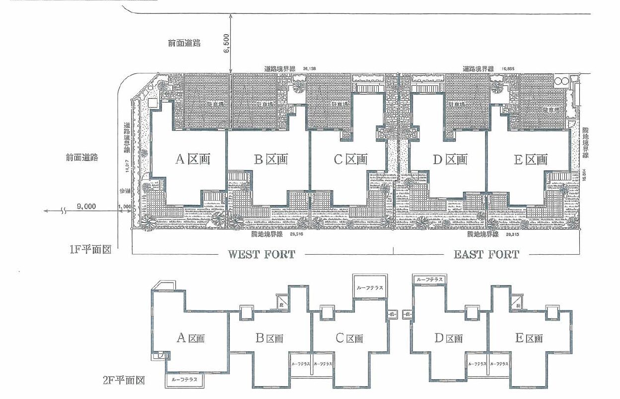
FLOORPLAN

FLOORPLAN

FLOORPLAN

  • 4 Bedrooms
  • Bedrooms
  • 1.5 Baths
  • 124 m²

FEATURES

  • Balcony
  • With lighting fixtures
  • Owner change

ABOUT

【Key Highlights】

Underground Power Lines: Unlike most of Japan, the power lines are placed underground, which helps preserve a beautiful streetscape.

(Supermarket)OK Store (2-min walk): The proximity of this discount store for food and daily necessities is a plus for attracting potential tenants.

First-floor floor heating : ensures highly efficient warmth, combating cold Yokohama winters (average 3.0°C in Feb 2025 in Yokohama).

Appropriate Management: The building is currently undergoing comprehensive maintenance, scheduled for completion by mid-November 2025. This necessary management provides immediate assurance regarding the property’s long-term quality and future upkeep.

 

Benefits of Purchasing Leased Land: (The reason why this property is  relatively affordable)

The unit price for buying and selling detached houses in the Honmoku Wada area (under normal situation) with land ownership is around 1.3 million yen per square meter. Since the designated property is  under a leasehold right land, the unit price is 670,000 yen per square meter. Compared to other nearby areas, properties in Honmoku Wada are relatively affordable because the designated property is a leasehold right land.

One of the most featuring advantages of leasehold right land is that it allows you to keep initial costs low. Even if you try to invest in a property with land ownership, the high purchasing price reduces profitability. Investing in leasehold  right land properties in the Honmoku Wada area allows comparatively lower entry costs and higher profitability.

※Note: The land price per square meter in the Honmoku Wada Area (north side of Honmoku Street) is ¥418,800, while the land price per square meter in Honmoku Makado (south side of Honmoku Street) is ¥236,700. The land valuation in the Honmoku Wada Area is 1.77 times the value of the Honmoku Makado area.

 

Building’s Profitability (Projected Rental Income)

Leasehold Land Period: 324 months (27 years)

Projected Rental Income: 324 months Times ¥350,000/month = ¥113,400,000(Estimate rental income)

Present Value at a 1% Discount Rate: ¥99,340,000

Note: Interior renovation is complete

Total Present Value: ¥115,605,000 

 

Special Offer

The current asking price is a special price contingent on a transaction closing and handover within 2025, as the current owner is eager to sell!

※Regarding Leasehold  Land Rights and Share

“West Fort” leases land across three sections, which featuring land share of 3,341 out of 10,000 of the total land area of 481.74㎡. (160.949㎡)
※The property (entire parcel) was divided into five sectors (A, B, C, D, E, as shown in the image gallery). This transaction only concerns Sector B.


※Regarding Notation of Exclusive Area of sector B (the entire land under leasehold land)

Area measured from the Core of Wall:125.00㎡

Area measured from the Internal Measurement: 117.12㎡

PROPERTY
DETAILS

Property Type: Investment Property (Whole Bldg)
Price: ¥ 64,600,000
Location: 29-14 Honmokuwada, Yokohama City
Access: JR Keihin-Tohoku Line “Yamate” Station – 16 min by bus + 4 min walk (“Honmokuwada” bus stop), JR Keihin-Tohoku Line “Negishi” Station – 26 min by bus + 4 min walk (“Futago-no-Tani” bus stop)
Urban Planning Area: Urbanized Area
Land Category: Residential
Zoning: Category 1 low-rise exclusive residential districts
Land Rights: Leasehold
Building Name: Plenas Stage Yokohama · Shin-Honmoku West Fort Block B
# of Floors: 2
Land Area: 481.74m²
Total Floor Size: 124m²
Total Units: 1
Building to Land Ratio: 40%
Floor Area Ratio: 80%
Structure: RC
Completion Date: April 1998
Gross Yield: 6.5%
Yearly Rental Income: ¥ 4,200,000
Status: Under lease
Handover Date: To be decided

Contact us

Contact Form - EN
STAY CONNECTED

JOIN THE JOURNEY